Mettmann:
EInfamilienhaus mit Garage im BIETERVERFAHREN, stark sanierungsbedürftig, in bevorzugter Wohnlage
Objekt-Nr.: 51202699K


Preis:
Preis auf Anfrage
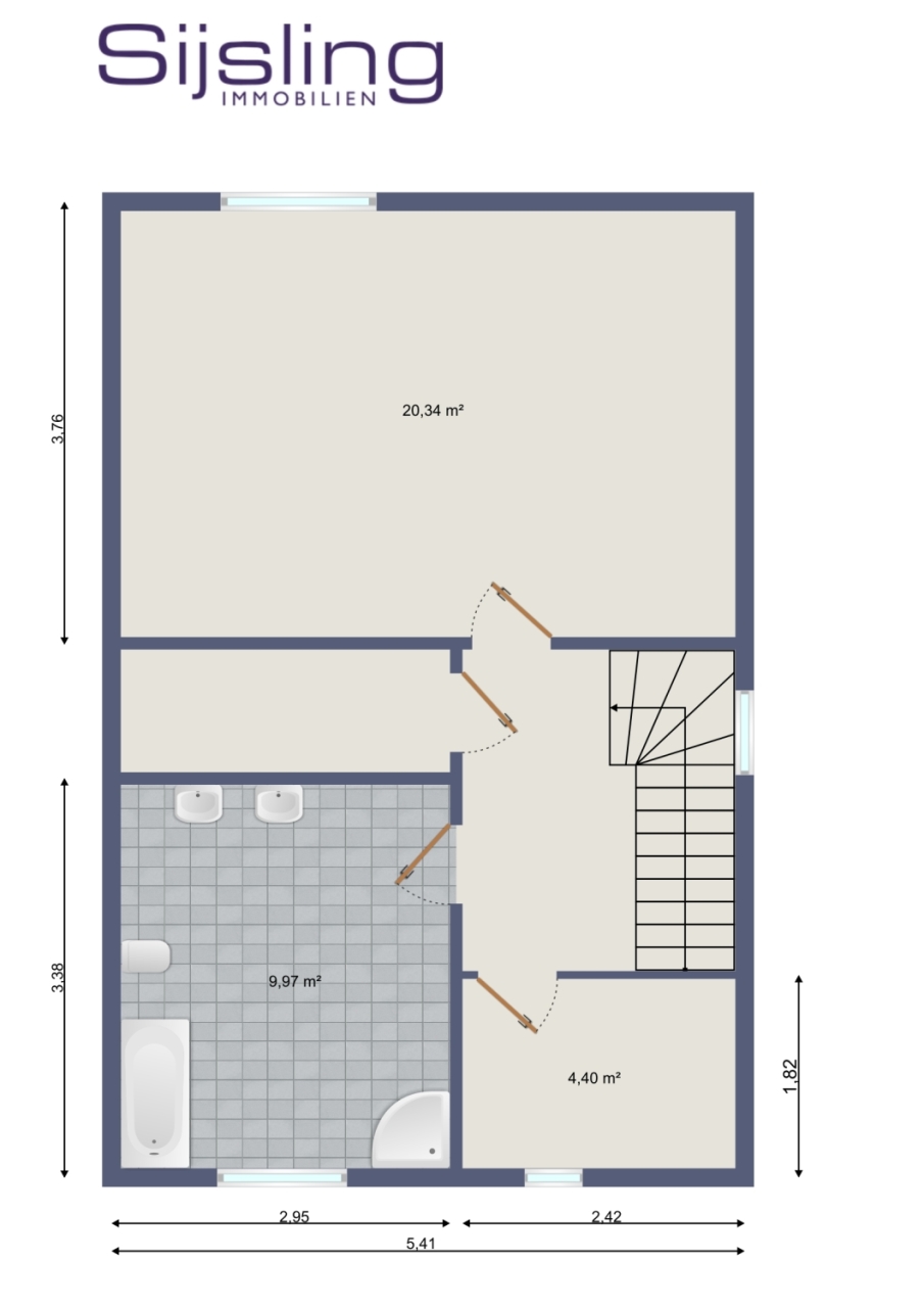
Wohnfläche ca.:
137 m²
Grundstück ca.:
654 m²
Zimmeranzahl:
5
Es handelt sich um ein anderthalbgeschossiges Wohngebäude mit Garage und Carport auf einem großzügigen Grundstück. Es liegt in einem ruhigen Wohngebiet in bevorzugter Wohnlage von Mettmann. Die Immobilie ist insgesamt stark sanierungsbedüftig und es bestehen massive Baumängel. Aufgrund des Gesamtzustandes kann aus wirtschaftlicher Sicht auch eine Freilegung des Grundstücks in Betracht kommen.
Etagenanzahl: 2
Anzahl Schlafzimmer: 3
Anzahl Badezimmer: 1
Terrasse: 1
Keller: voll unterkellert
Anzahl der Parkflächen: 1 x Carport; 1 x Garage
Baujahr: 1950
Zustand: sanierungsbedürftig
Heizung: Zentralheizung
Befeuerungsart: Öl
Energieausweistyp: Bedarfsausweis - gültig vom 19.11.2020 bis 18.11.2030
Energieeffizienz-Klasse: H
Baujahr laut Energieausweis: 1950
Wir weisen auf unsere Allgemeinen Geschäftsbedingungen hin. Durch weitere Inanspruchnahme unserer Leistungen erklären Sie die Kenntnis und Ihr Einverständnis.
Das könnte Ihnen auch gefallen
Sanierte Doppelhaushälfte der 20er Jahre für Individualisten
Attraktive BAST-Bau Wohnung mit Terrasse, Garten und Tiefgaragenstellplatz
Frank Sijsling Immobilien
Herr Frank Sijsling
Max-Ernst-Straße19
40822 Mettmann
Mobil: +49 151 11565627
40822 Mettmann
Nordrhein-Westfalen

































