Mettmann:
Schöne 2-Zi.-Souterrain-Wohnung mit Garten und Blick ins Grüne
Objekt-Nr.: 51202687


Vorderansicht

Garten Teilansicht

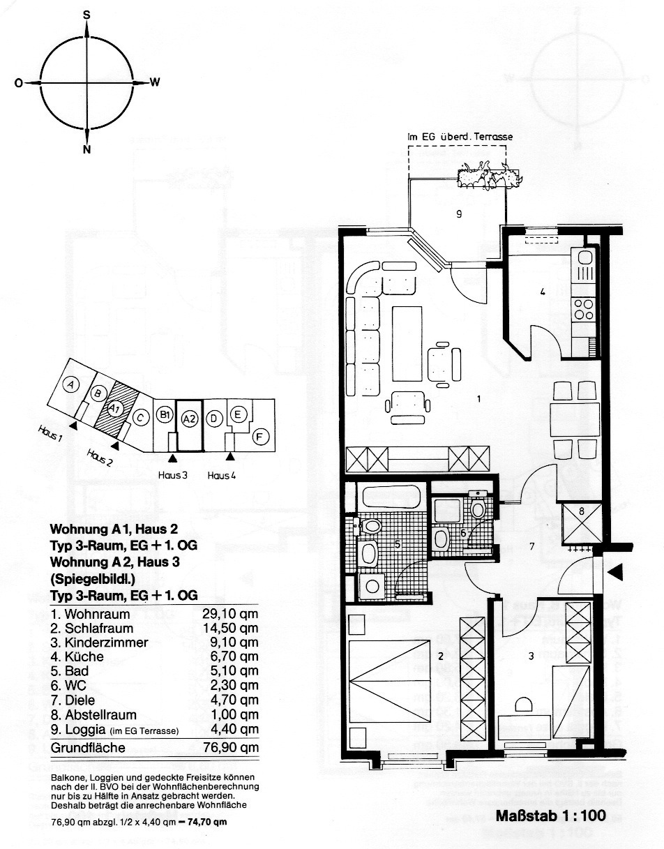
Grundriss mit Trennwand

Grundriss 2-Zimmerwohnung

Wohnraum Teilansicht

Durchgang zum Wohnraum

Diele

Küche Teilansicht

Schlafzimmer mit Austritt

Blick in Garten und Umgebung











Preis:
Preis auf Anfrage
Wohnfläche ca.:
83,15 m²
Zimmeranzahl:
2
Diese hübsche Wohnung liegt am Rande eines Wohngebietes mit Blick auf einen landwirtschaftlich genutzten Grüngürtel. Hier genießen Sie Ihren eigenen Garten mit großer Loggia. Nach dem Haupteintritt ins Wohnhaus geht es über eine Treppe ins Souterrain mit einem kleinen Kellerflur. Hier befinden sich neben der Wohnung auch der Gemeinschaftswaschkeller, drei Abstellkellerräume und der Heizungsraum. Nach dem Eintritt in die Wohnung gelangen Sie in die Diele. Hieran anschließend sind Wohnraum, Schlafraum, die zum Wohnraum offene Küche und das fensterlose Bad. Bis auf zwei Fenster sind alle übrigen bodentief und geben den Blick frei in den Garten.…
Der Wohnraum verfügt über einen Austritt zur überdachten Hauptterrasse und einen Weiteren zu einer kleinen Terrasse an der Giebelseite des Gebäudes.
Eine derzeitige Besonderheit dieser Wohnung ist, dass der Wohnraum zur Schaffung eines dritten Zimmers durch eine Trockenbauwand unterteilt ist. Dadurch ist der Zugang zum nunmehr sehr kleinen Wohnzimmer nur über die Küche möglich. Die Trockenbauwand lässt sich entfernen und der alte Zustand ist wieder herstellbar (siehe Grundrisse).
Der Garten in Hanglage ist eine Oase der Ruhe. Ein kleiner Bach mit Holzbrücke durchquert das Gartengrundstück, welches von außen über einen Zugang erschlossen ist. Das Nutzungsrecht steht nur dem Eigentümer der Souterrainwohnung zu, der zu Unterhalt und Instandhaltung verpflichtet ist. Eine wesentliche Änderung bedarf der Zustimmung der Verwalter*in. Die Wohnanlage ist in vier separate Wohneigentümergemeinschaften aufgeteilt. In dieser Gemeinschaft befinden sich vier Wohneigentümer. Wünschen Sie weitere Informationen oder eine Besichtigung, verwenden Sie bitte das Kontaktformular. Erstanfragen können nur schriftlich und mit vollständigen Kontaktdaten bearbeitet werden. Wir bitten um Verständnis.
Wohnungstyp: Souterrain
Etagenanzahl: 4
Provisionspflichtig: ja
Provision: 1,79 % (inkl. 19 % MwSt. ab 01.01.2021)
Anzahl Schlafzimmer: 1
Anzahl Badezimmer: 1
Loggia: 2
Garten: ja
Keller: Abstellraum
Baujahr: 1976
Hausgeld: 270 €
Bezugsfrei ab: nach Vereinbarung
Energieverb. Warmwasser enthalten: ja
Heizung: Zentralheizung
Befeuerungsart: Öl
Energieausweistyp: Verbrauchsausweis - gültig vom 22.11.2020 bis 21.11.2030
Energieeffizienz-Klasse: G
Baujahr laut Energieausweis: 1976
Die von uns gemachten Informationen beruhen auf Angaben des Verkäufers bzw. der Verkäuferin. Für die Richtigkeit und Vollständigkeit der Angaben kann keine Gewähr bzw. Haftung übernommen werden. Ein Zwischenverkauf und Irrtümer sind vorbehalten.
Wir weisen auf unsere Allgemeinen Geschäftsbedingungen hin. Durch weitere Inanspruchnahme unserer Leistungen erklären Sie die Kenntnis und Ihr Einverständnis.
Das könnte Ihnen auch gefallen
Sanierte Doppelhaushälfte der 20er Jahre für Individualisten
Frank Sijsling Immobilien
Herr Frank Sijsling
Max-Ernst-Straße19
40822 Mettmann
Mobil: +49 151 11565627










































































